Chiêm ngưỡng nội thất của biệt thự cao cấp The Park City Luxury cùng Xây dựng Thái Sơn. Biệt thự The Park City Hà Đông 01 là căn biệt thự liền kề trong quần thể The Park City – một trong những khu đô thị sang trọng bậc nhất phía Tây Hà Nội. Căn 01 là căn đầu tiên đánh dấu hồ sơ năng lực của Xây dựng Thái Sơn trong khu Park City, với tầm nhìn thiết kế hướng đến sự cân bằng, sang trọng và cảm xúc, Thái Sơn Construction đã biến không gian sống thành một bản giao hưởng giữa nghệ thuật và kỹ thuật, nơi từng ánh sáng – đường nét – chất liệu đều được tính toán tỉ mỉ cho dự án Cải tạo biệt thự The Park City.
Nội thất của biệt thự cao cấp The Park City Luxury
Tầng hầm




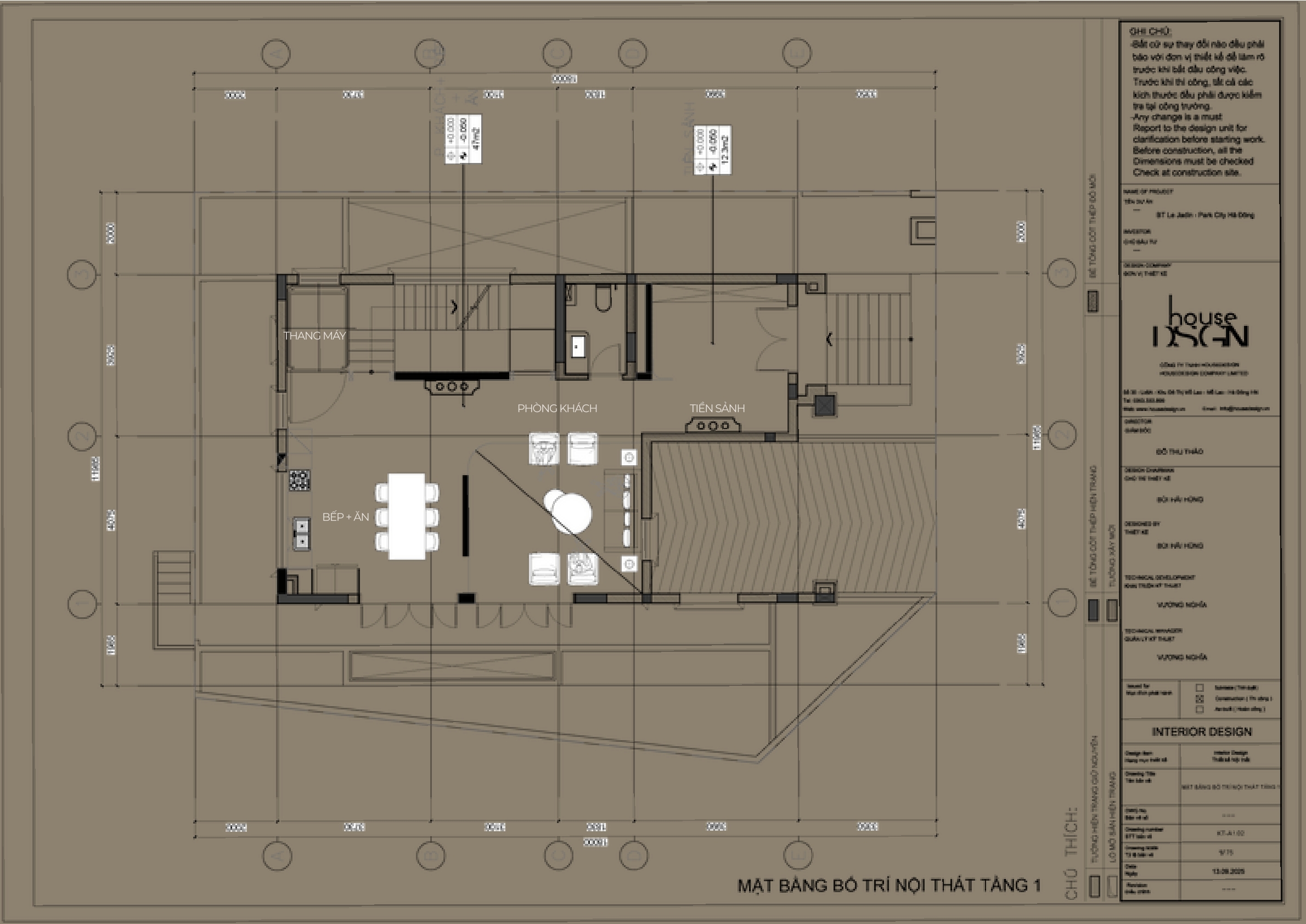
Tầng 1

Sảnh tầng 1
không gian nội thất tinh tế, sang trọng và đầy cá tính – phản chiếu khí chất của một nữ chủ nhân hiện đại và am hiểu thẩm mỹ. Bước vào không gian này, ta như lạc vào thế giới riêng của một nữ chủ nhân thanh lịch, bản lĩnh và yêu cái đẹp đến từng chi tiết nhỏ. Ánh sáng vàng ấm áp phủ lên sắc đồng sang trọng, phản chiếu trên bức tranh đầy cảm xúc – nơi nghệ thuật và cá tính giao thoa. Mọi vật dụng đều có câu chuyện riêng, nhưng tất cả cùng kể về một điều: gu thẩm mỹ đỉnh cao và phong thái sống đẳng cấp.




Phòng khách
Phòng khách này là minh chứng rõ nét cho nghệ thuật sắp đặt của sự sang trọng – nơi từng chi tiết, từ ánh sáng cho đến vật liệu, đều kể câu chuyện về đẳng cấp sống và phong thái của gia chủ. Trung tâm là mảng tường ốp đá tự nhiên kết hợp ánh vàng kim – như một ngọn lửa nghệ thuật bừng sáng, phản chiếu trên lò sưởi và những chi tiết kim loại ánh gương. Mỗi đường cong của ghế, mỗi lớp vải nhung đỏ đô đều toát lên hơi thở quý phái, mềm mại mà kiêu hãnh.
Bếp + Phòng ăn
Tầng lửng
Đây là khu vực riêng tư hơn phòng khách chính, nơi các thành viên trong nhà có thể: Xem phim, trò chuyện, nghỉ ngơi thoải mái mà không cần quá chỉn chu như ở tầng trệt. Dành thời gian cho nhau — đọc sách, chơi game, thư giãn. Đặc biệt hữu ích trong biệt thự nhiều tầng, giúp phân tách không gian tiếp khách và sinh hoạt gia đình.
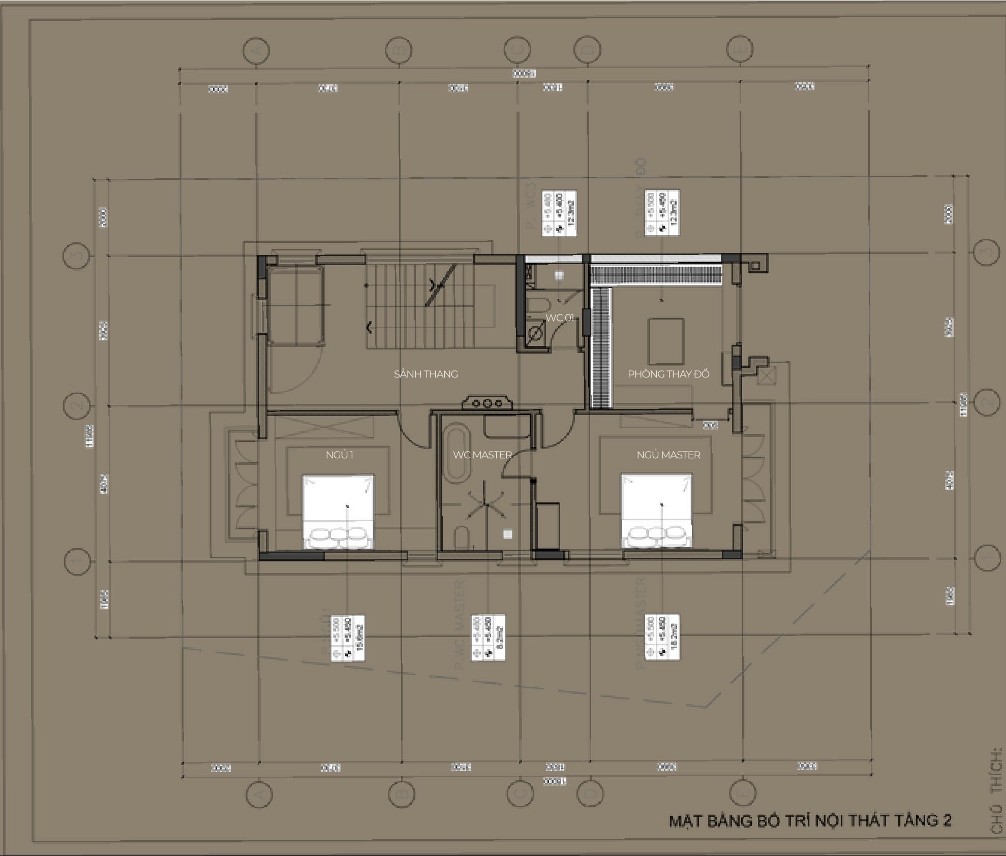
Tầng 2
Sơ đồ mặt bằng:
Hành lang
Phòng ngủ Master:
Phòng Wc Master:
Phòng thay đồ
Phòng ngủ 1
Sảnh và WC
Tầng 3
Phòng ngủ 03:
Phòng ngủ 04
Tầng 4
Trên đây là toàn bộ hồ sơ thiết kế nội thất của dự án Cải tạo biệt thự The Park City Hà Đông căn 01, không gian mở, trần cao và ánh sáng tự nhiên chan hòa, tạo nên cảm giác vừa tự do, vừa trân trọng – nơi mỗi giây phút sinh hoạt đều trở thành một khoảnh khắc nghệ thuật. Đây không chỉ là một căn phòng, mà là bản giao hưởng của thẩm mỹ, cảm xúc và phong cách sống – được kiến tạo bởi bàn tay tinh tế của Xây Dựng Thái Sơn.
Quy vị cũng có thể theo dõi Tiến độ cải tạo biệt thự Park City Hà Đông để nắm được hiện trạng của căn hộ cũng như quá trình làm việc của Thái Sơn.



































































