Giữa muôn vàn xu hướng kiến trúc, nhà phố 2 tầng hiện đại nổi lên như một giải pháp lý tưởng, dung hòa hoàn hảo giữa công năng sử dụng và giá trị thẩm mỹ. Mẫu nhà phố 2 tầng đơn giản giá rẻ công năng 1 ngủ, 1 khách,1 vs, nếu quỹ đất nhà bạn nhỏ và ít kinh phí thì tham khảo mẫu nhà phố 2 tầng giá rẻ này.
Nhà phố 2 tầng đơn giản giá rẻ
Với thiết kế tối giản, sử dụng vật liệu mới và không gian mở thoáng đãng, mẫu nhà phố hiện đại 2 tầng này mang đến cảm giác trẻ trung, năng động nhưng cũng đầy sự tinh tế. Từng chi tiết đều được chăm chút kỹ lưỡng: từ hình khối vuông vức, mảng tường bê tông kết hợp kính trong suốt, cho đến ban công xanh mát – tất cả hòa quyện để tạo nên một tổ ấm vừa hiện đại, vừa gần gũi thiên nhiên, phù hợp với cuộc sống đô thị ngày nay.
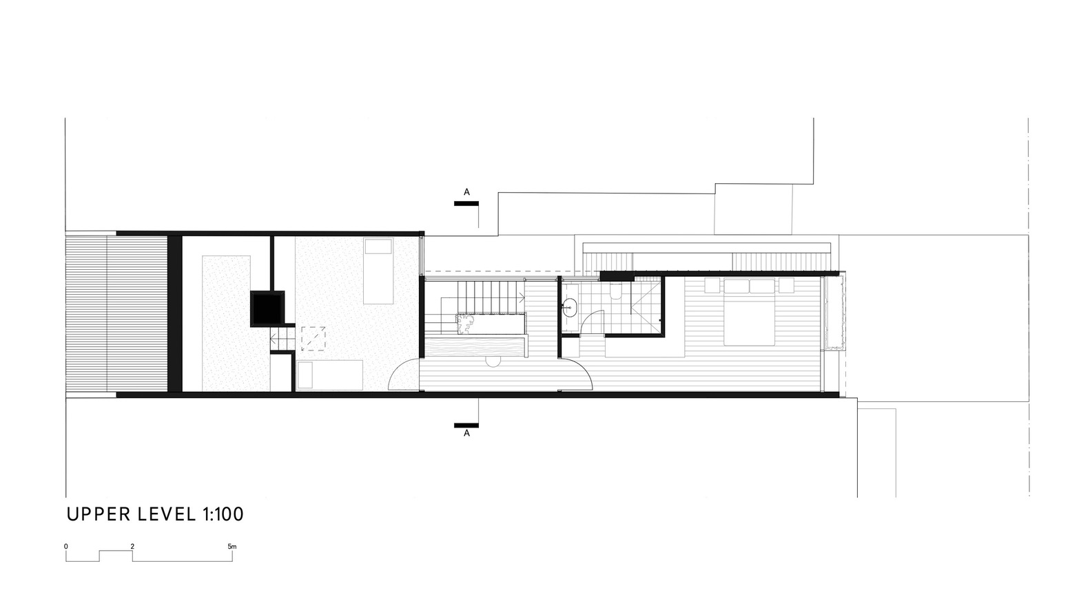
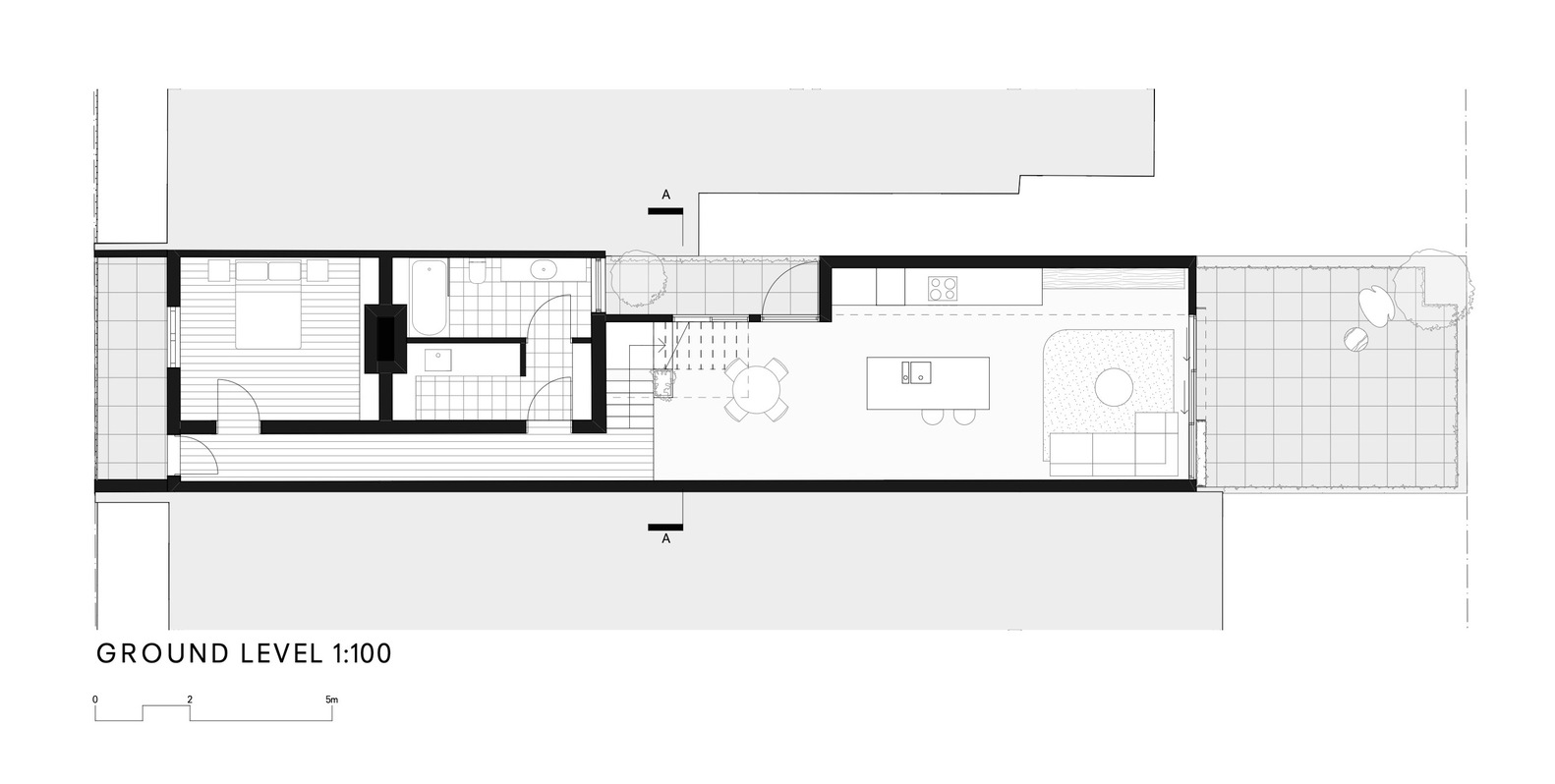
Mặt bằng công năng
Hình ảnh 3d
Có thể nói, mẫu nhà phố 2 tầng hiện đại không chỉ là công trình kiến trúc thông thường mà còn là tuyên ngôn phong cách sống của gia chủ. Đây là sự lựa chọn hoàn hảo cho những ai yêu thích sự tinh giản nhưng vẫn muốn tận hưởng tiện nghi và sự kết nối với thiên nhiên. Mỗi góc nhỏ trong ngôi nhà đều chứa đựng tâm huyết của kiến trúc sư và khát khao xây dựng một mái ấm bền vững cho gia đình. Liên hệ Xây dựng Thái Sơn để được tư vấn thêm về chi phí xây nhà phố 2 tầng nhé.





















Đánh giá
Chưa có đánh giá nào.